This is the house that we're building.

And a slightly different view.

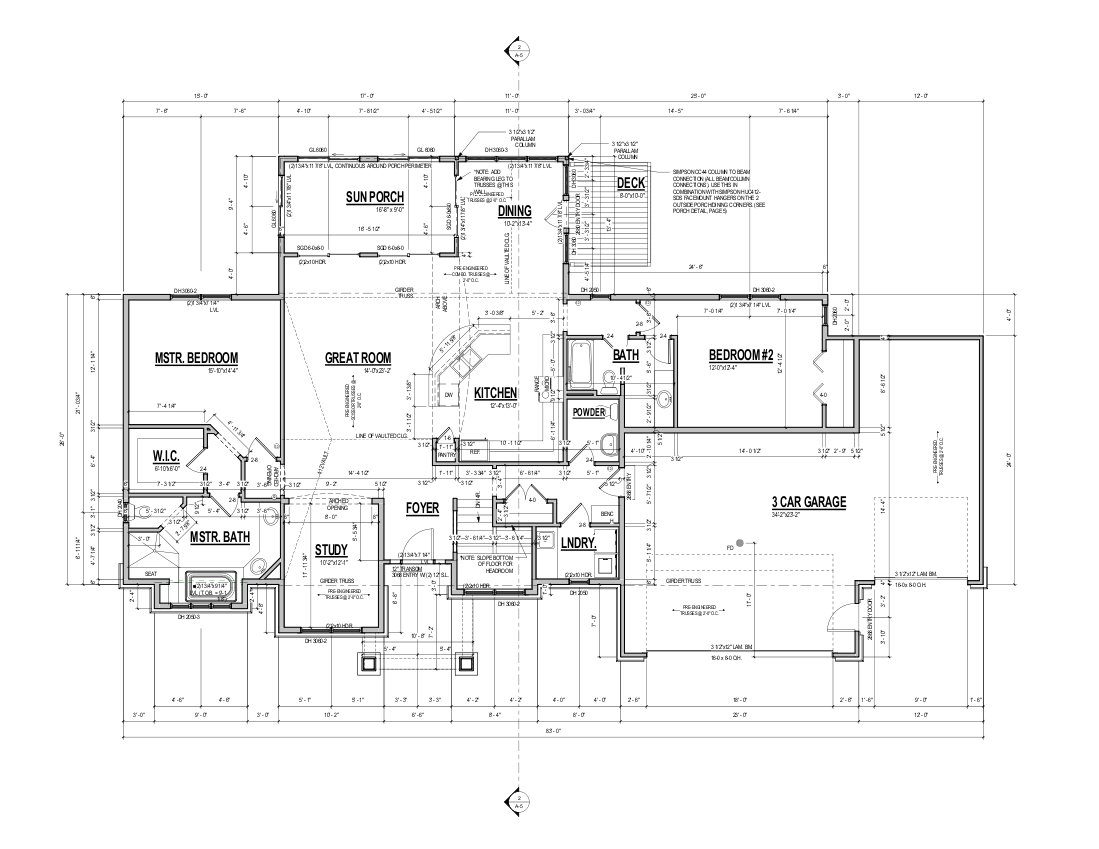
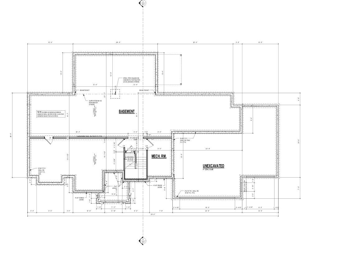
Here's the floor-plan. Picture the second bedroom three feet wider and the garage about two feet longer and wider. That's how it's going to be done.

We have the blueprints and at least some of the contractors lined up. Just waiting for the materials list from the architect. Speaking of the architect, the house on their website is here. They do very nice work. The only thing we're changing is increasing the size of the garage and the second bedroom.
Stay tuned for updates . . . Pictures of progress will follow.
October 8, 2009: Troubles . . . Our builder called last night . . . He doesn't have time to build the house this year. We'd really like to get it going before winter. If anyone knows a good home builder let us know. :-)
On the up side. The trees were cleared from the lot and our excavator just got back from his hunting trip in Montana. He's ready to start. Wish we had a builder.
October 16, 2009: Spoke with our contractors this week. With everyone getting a late start this year due to the very wet spring, they're all still behind schedule. We've decided to wait until spring to start the house. We're going to be watching lumber prices and looking for any specials on whatever we need over the winter. Have the materials list, just have to start buying.
March 4, 2010: Got the revised house plans from the architect. The second bedroom, bathroom and the powder room have all been expanded. A third garage stall has been added, making it a 3 car garage. Now we just need to get started.





